FOR SALE BY AUCTION: Wednesday 18 May 2016 Commencing at 5:30pm




Land at All Saints Close, Sapcote, Leicestershire, LE9 4TZ

Sold for £81,000.


Remote Bidding Auction

Auction to be streamed live on our website www.shonkibros.com
Bidding via Internet | Telephone | Proxy
You will need to pre-register for remote bidding, the form can be downloaded from our website and found within our auction catalogue. Please ensure you provide your identification and a complete remote bidding form no later than 24 hours prior to the auction. Please do not hesitate to contact us if you are unsure of the remote bidding process.


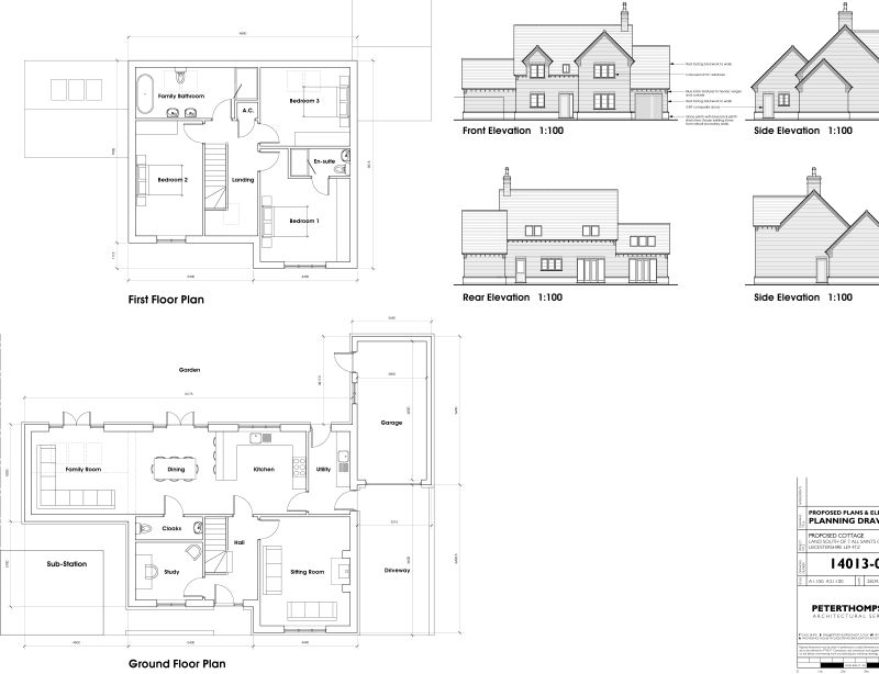
DESCRIPTION

Freehold building land having planning permission granted for a detached dwelling (Class C3).

LOCATION

Travelling along the M69 Motorway, Sapcote can be approached leaving the motorway at junction 2. At the roundabout take the first exit and follow the B4699 Hinckley Road for approximately 2 miles where the road turns into Leicester Road. Turn right into Church Street then left into All Saints Close. Sapcote is a village in the south west of Leicestershire, having an approximate population of 2,700 people.

LAND

This is a rare opportunity to aquire a plot of land having the benefit of planning permission granted for a detached dwelling.

PLANNING

Planning permission was granted on the 8th May 2014 for the erection of a two storey detached dwelling with associated parking and amenity space (Application No. 14/0459/1/PX). Interested parties should make their own enquiries by contacting Blaby District Council (Tel: 0116 272 7705).

TENURE

Freehold with vacant possession.

NOTE

The completion date will be on or before six weeks following exchange of contracts.

SOLICITORS

GS Solicitors

TEL: 01455 618763
EMAIL:

*GUIDE PRICE & RESERVES

Definition of Guide Prices:
The guide price is an indication of the seller’s current minimum price expectation at auction and the guide price, or range of guide prices, is given to assist prospective purchasers. The guide price can be adjusted by the seller at any time up to the day of the auction in light of the interest shown during the marketing period and bidders will be notified of this change on our website and by the auctioneer prior to the lot being offered.

Definition of Reserve Price:
The reserve price is the seller’s minimum acceptable price at auction and the figure below which the auctioneer cannot sell. It is usual, but not always the case that a provisional reserve is agreed between the seller and the auctioneer at the start of marketing and the Final Reserve Price will be agreed between the auctioneer and the seller prior to the auction sale. Whilst the reserve price is confidential it will usually be set within the quoted guide range and in any event will not exceed the highest quoted guide price.

Buyer’s Fee / Additional Costs
For each Lot, a Buyers' Fee of £1,800.00 inc VAT is payable on the fall of the hammer. Additional charges and fees might be charged by the seller and/or other third parties . You are strongly advised to read the Special Conditions of Sale for the Lot prior to bidding to check for any additional charges and fees and to check the addendum which might also (but does not always) contain details of such amounts.

Disclaimer
All measurements are approximate. Whilst we endeavour to make our sales particulars accurate and reliable, these approximate room sizes are only intended as general guidance. You must verify the dimensions carefully before. Shonki Bros have not tested any apparatus, equipment, fixtures, fittings or services and it is the buyers interests to check the working condition of any appliances. Potential buyers are advised to recheck the measurements before committing to any expense. While we endeavour to make our sales particulars fair, accurate and reliable, they are only a general guide to the property and, accordingly, if there is any point which is of particular importance to you, please contact the office and we will be pleased to check the position for you, especially if you are contemplating travelling some distance to view the property. These particulars are issued in good faith but do not constitute representations of fact or form part of any offer or contract. The matters referred to in these particulars should be independently verified by prospective buyers or tenants.

Get the latest catalogue